详细说明
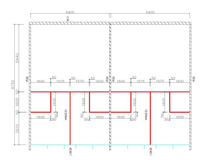
马鞍山奥体中心壁球馆

                                    马鞍山奥体中心壁球馆:建设时间2016年3月,尺寸:6.4米*10米*2间,墙壁采用sport woll进口壁球馆批荡材料。



上海金运体育设施工程有限公司 沪ICP备18048674号-1 技术支持:品划网络